
TorinoFrazionamentoRiqualificazione178 m²
Torino Centro Storico: un quadrilocale e un bilocale nati da un intervento di frazionamento
Un’operazione di frazionamento che ha permesso di trasformare un ampio immobile di 178 mq in due unità abitative indipendenti: un quadrilocale e un bilocale, progettate secondo i più alti standard di comfort, luce e funzionalità.
Galleria
Scopri le immagini dell'intervento

Foto 1 di 10
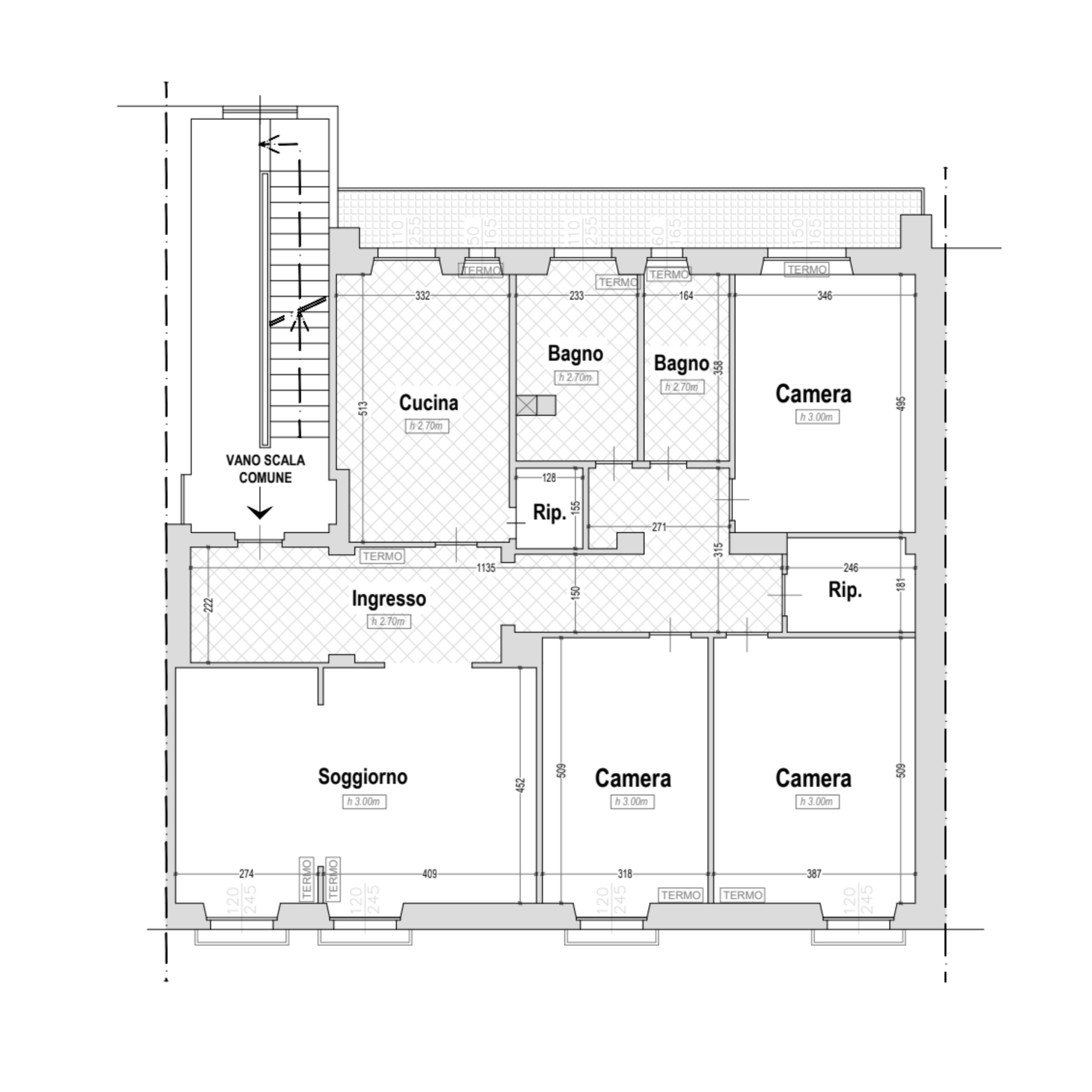
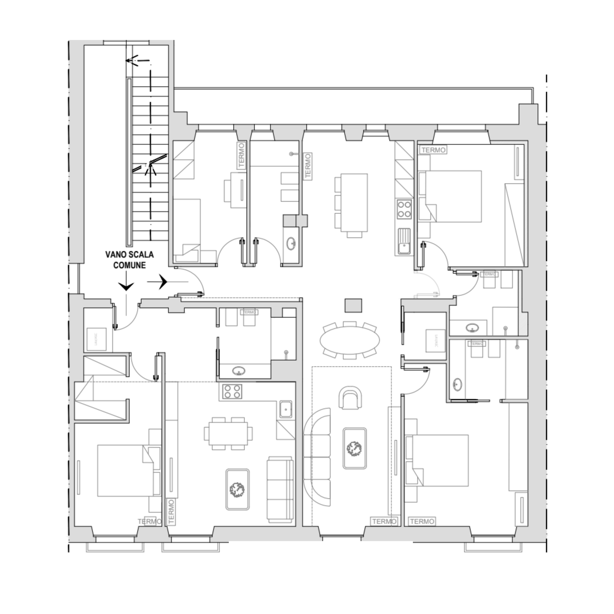
Planimetrie
Stato di fatto e nuovo layout a confronto

