
TorinoRiqualificazioneFrazionamentoCambio destinazione d'uso800 m²
Arcivescovado Suites
Via Arcivescovado, 7
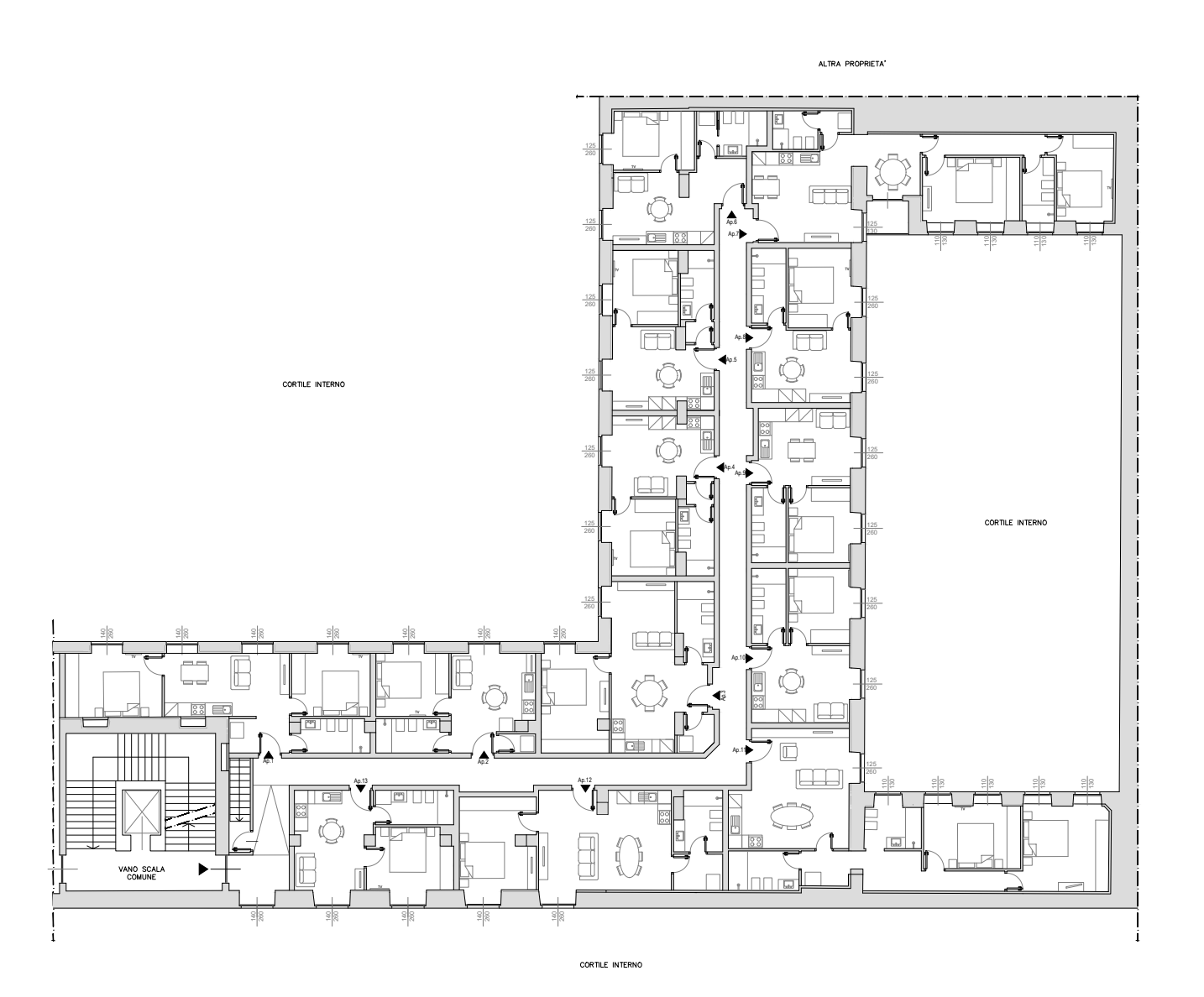
Operazione di sviluppo e riqualificazione di un’ex banca di 800 mq in pieno centro a Torino, che prevede un cambio destinazione d’uso a residenziale e il successivo frazionamento di un intero piano in 13 appartamenti di cui 10 bilocali e 3 trilocali.
Galleria
Scopri le immagini dell'intervento

Foto 1 di 16
Planimetrie
Stato di fatto e nuovo layout a confronto

